Villa Road
Benfleet, SS7
Semi-detached house
For Sale
Offers Over £365,000

View All




+13 photos
Being sold with no onward chain, this home offers the perfect blend of comfort, flexibility, and convenience, making it an ideal choice for a wide range of buyers.
Set within a well-connected and sought-after area, the location provides everything needed for a balanced lifestyle. From nearby shops and schools to green spaces and transport links, residents can enjoy the benefits of a friendly community while staying close to daily essentials and commuting routes.

Double tap to activate map
Train Stations
Education
Book a Viewing
Property Details
Property ID: | 587930 |
Price: | Offers Over £365,000 |
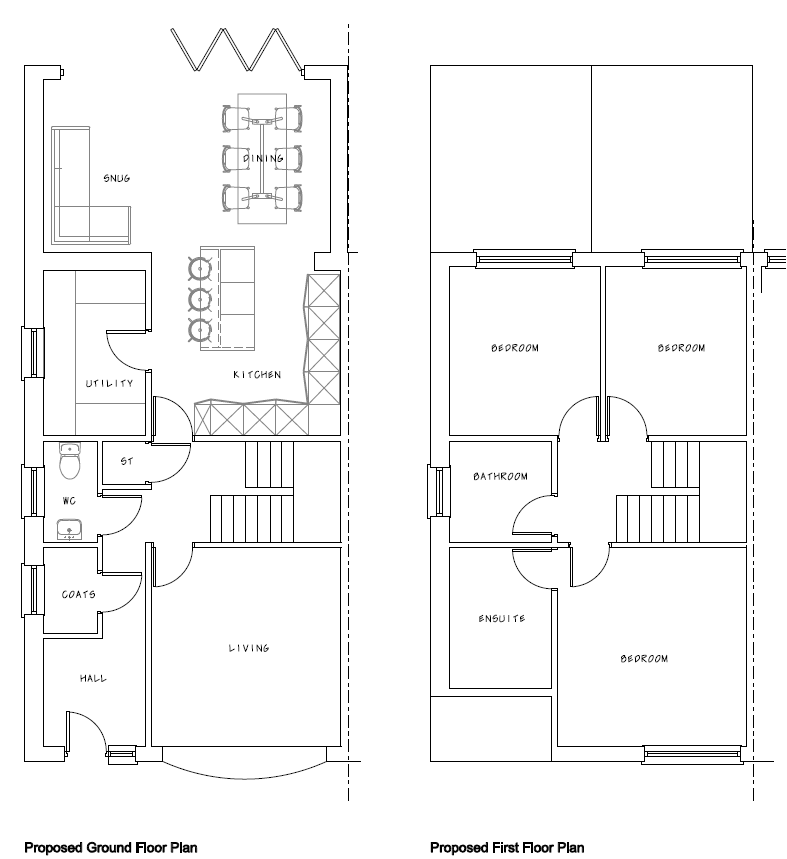
Bedrooms: | 3 |
Bathrooms: | 1 |
Property Type: | Semi-detached house |
Property Status: | For Sale |

Floor plan

EPC
Related Properties
Sell Your Property - Free Instant Valuation
Get a free property valuation and expert advice from our experienced agents.
Get Free Valuation